Im Herzen von Pusarnitz erwartet Sie ein tolles Wohnprojekt mit 26 hochwertigen Wohnungen, die Ihnen ein Maximum an Komfort und Individualität bieten.
“Modernes Wohnen” setzt auf durchdachte Raumplanung und kombiniert diese mit einer Vielzahl an Frei- und Grünflächen. Anspruchsvolle Architektur und nachhaltige Bauweise komplettieren dieses tolle Angebot.
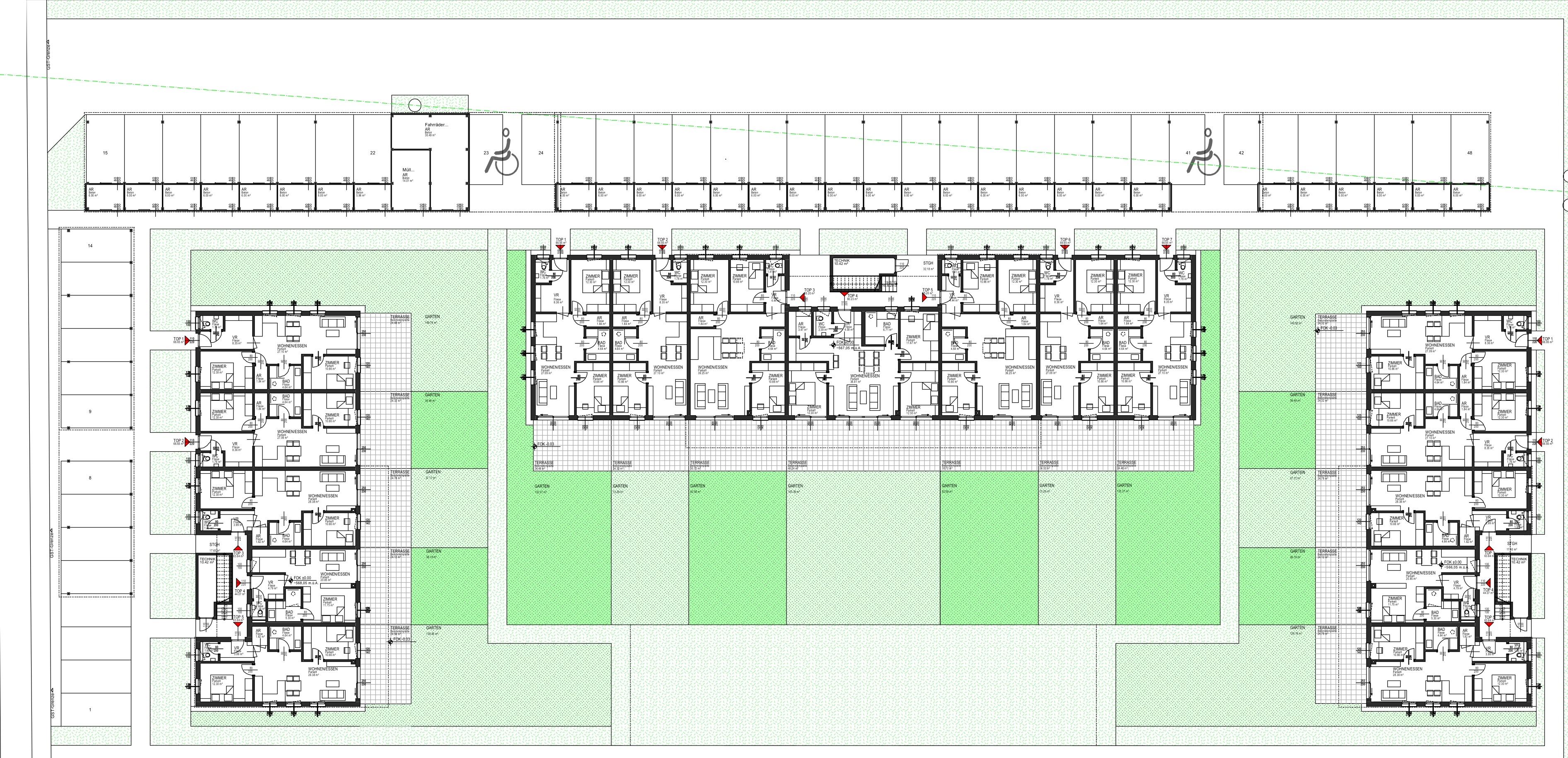
| TOP | Etage | Ausrichtung | Zimmer | Wohnfläche | Balkon | Terrasse | Garten | Panorama Terrasse | NF gew. | Preis (€) | Plan | Status | Kontakt |
|---|---|---|---|---|---|---|---|---|---|---|---|---|---|
| 1 | EG | Süd-West | 3 | 66,65m² | - | 24,48m² | 132,37m² | - | 86,00m² | 357.200 | Plan | Verfügbar | Anfragen |
| 2 | EG | Süd | 3 | 66,65m² | - | 24,32m² | 73,29m² | - | 80,05m² | 343.100 | Plan | Verfügbar | Anfragen |
| 3 | EG | Süd | 4 | 85,20m² | - | 30,72m² | 92,58m² | - | 102,14m² | 441.800 | Plan | Verfügbar | Anfragen |
| 4 | EG | Süd | 4 | 90,23m² | - | 48,24m² | 145,38m² | - | 116,83m² | 488.800 | Plan | Verfügbar | Anfragen |
| 5 | EG | Süd | 4 | 85,20m² | - | 30,72m² | 92,58m² | - | 102,14m² | 441.800 | Plan | Verfügbar | Anfragen |
| 6 | EG | Süd | 3 | 66,65m² | - | 24,32m² | 73,29m² | - | 80,05m² | 343.100 | Plan | Verfügbar | Anfragen |
| 7 | EG | Süd-Ost | 3 | 66,65m² | - | 24,48m² | 132,37m² | - | 86,00m² | 357.200 | Plan | Verfügbar | Anfragen |
| 8 | 1.OG | Süd-West | 4 | 85,68m² | 16,59m² | 20,34m² | - | 123,62 | 125,82m² | 517.000 | Plan | Verfügbar | Anfragen |
| 9 | 1.OG | Süd | 4 | 90,16m² | 26,53m² | - | - | - | 96,79m² | 432.400 | Plan | Verfügbar | Anfragen |
| 10 | 1.OG | Süd-Ost | 4 | 85,68m² | 16,59m² | 20,34 | - | 123,62 | 125,82m² | 517.000 | Plan | Verfügbar | Anfragen |
| TOP | Etage | Ausrichtung | Zimmer | Wohnfläche | Balkon | Terrasse | Garten | Panorama Terrasse | NF gew. | Preis (€) | Plan | Status | Kontakt |
|---|---|---|---|---|---|---|---|---|---|---|---|---|---|
| 1 | EG | Nord-Ost | 3 | 66,65m² | - | 24,48m² | 149,76m² | - | 87,74m² | 357.200 | Plan | Verfügbar | Anfragen |
| 2 | EG | Ost | 3 | 66,65m² | - | 24,32m² | 36,48m² | - | 76,38m² | 329.000 | Plan | Verfügbar | Anfragen |
| 3 | EG | Ost | 3 | 63,64m² | - | 27,78m² | 37,17m² | - | 74,30m² | 314.900 | Plan | Verfügbar | Anfragen |
| 4 | EG | Ost | 2 | 44,07m² | - | 24,12m² | 36,18m² | - | 53,72m² | 225.600 | Plan | Verfügbar | Anfragen |
| 5 | EG | Süd-Ost | 3 | 63,64m² | - | 24,94m² | 138,80m² | - | 83,76m² | 343.100 | Plan | Verfügbar | Anfragen |
| 6 | 1.OG | Nord-Ost | 3 | 63,93m² | 13,32 | 23,82m² | - | 120,14 | 103,25m² | 404.200 | Plan | Verfügbar | Anfragen |
| 7 | 1.OG | Ost | 2 | 43,93m² | 13,27 | - | - | - | 47,25m² | 211.500 | Plan | Verfügbar | Anfragen |
| 8 | 1.OG | Süd-Ost | 3 | 64,90m² | 13,50m² | - | - | - | 68,28m² | 319.600 | Plan | Verfügbar | Anfragen |
| TOP | Etage | Ausrichtung | Zimmer | Wohnfläche | Balkon | Terrasse | Garten | Panorama Terrasse | NF gew. | Preis (€) | Plan | Status | Kontakt |
|---|---|---|---|---|---|---|---|---|---|---|---|---|---|
| 1 | EG | Nord-West | 3 | 66,65m² | - | 24,32m² | 149,92m² | - | 87,72m² | 347.800 | Plan | Verfügbar | Anfragen |
| 2 | EG | West | 3 | 66,65m² | - | 24,32m² | 36,48m² | - | 76,37m² | 329.000 | Plan | Verfügbar | Anfragen |
| 3 | EG | West | 3 | 63,64m² | - | 27,78m² | 37,17m² | - | 73,55m² | 314.900 | Plan | Verfügbar | Anfragen |
| 4 | EG | West | 2 | 44,07m² | - | 24,12m² | 36,18m² | - | 53,72m² | 225.600 | Plan | Verfügbar | Anfragen |
| 5 | EG | Süd-West | 3 | 63,64m² | - | 24,78m² | 139,19m² | - | 83,75m² | 343.100 | Plan | Verfügbar | Anfragen |
| 6 | 1.OG | Nord-West | 3 | 63,93m² | 13,32 | 23,82m² | - | 120,14 | 103,25m² | 404.200 | Plan | Verfügbar | Anfragen |
| 7 | 1.OG | West | 2 | 43,93m² | 13,27 | - | - | - | 47,25m² | 211.500 | Plan | Verfügbar | Anfragen |
| 8 | 1.OG | Süd-West | 3 | 64,90m² | 13,50m² | - | - | - | 68,28m² | 319.600 | Plan | Verfügbar | Anfragen |